【解读】消防流量开关的安装位置


《消防给水及消火栓系统技术规范》
15S909图示


《自动喷水灭火系统设计》
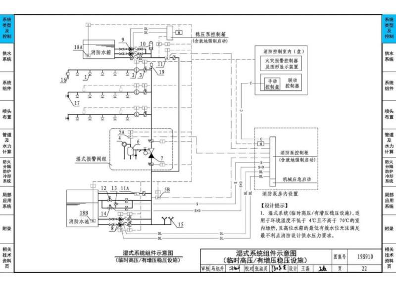
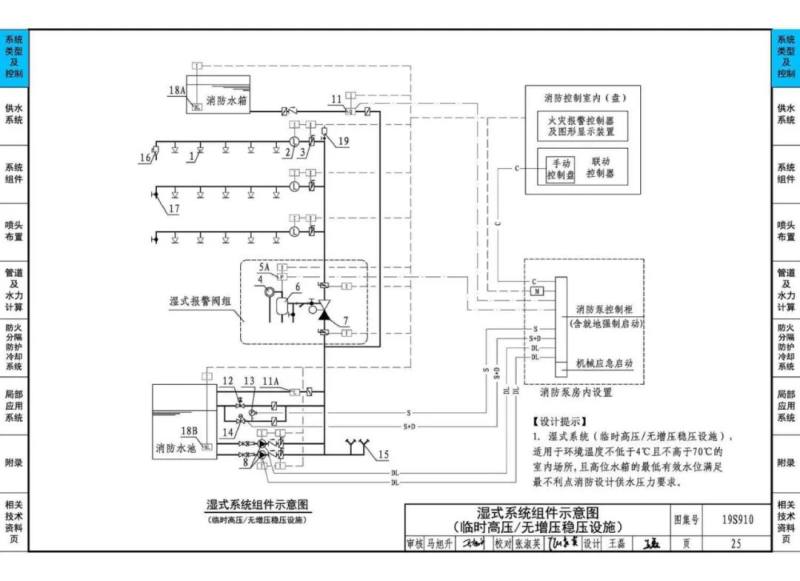
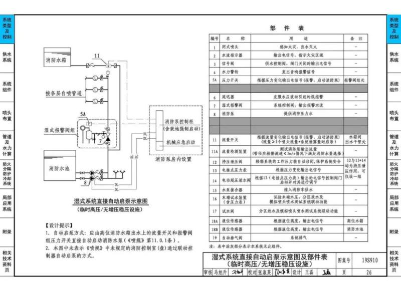
19S910图示





消防资源网认为:
一、对于仅设置高位消防水箱,无稳压装置的系统:
流量开关宜设置于止回阀的上游侧,可最大限度保证流量开关的安全,减少水泵启停冲击等不利影响,是相对合适的方式。如果设置于止回阀的下游侧,易受水泵启停影响(可能在止回阀位置形成类似水锤冲击),同时,止回阀有较大水阻,对水流流态影响较大,可能影响流量开关的准确性,不建议采用这种方式。


二、对于设置稳压装置和高位消防水箱的系统:
这类系统的流量开关,可能设置在稳压装置汇入管下游侧或上游侧,这两个设置位置,对系统可靠性影响较大,存较大争议:
1、流量开关设置于稳压装置汇入管下游侧(下图左):
这种方式中,稳压装置的水流通过流量开关,流量开关能更好的监测流量变化,缺点是易受稳压装置流量影响,报警阈值不好确定,相对误报率较高。
这种方式适应于启动流量相对较大的系统,比如消火栓系统等,不适应于启动流量较小的系统,比如自动喷水灭火系统。
这种方式也不适应于平时管网漏水量较大,以及稳压泵启动时流量波动较大的场所。
2、流量开关设置于稳压装置汇入管上游侧(下图右):
这种方式规避了稳压装置的流量冲击,仅当稳压装置的流量不能满足用水量时,流量开关才会动作,误报较低,但灵敏度会受到影响。
这种方式较适应于平时管网漏水量较大,稳压泵启动时流量波动较大的场所,以及启动流量较小系统(比如自动喷水灭火系统等)。

推荐阅读
1、建筑消防工程验收常见质量通病
2、常见的消防安全隐患
3、建筑消防工程验收常见质量通病(二)
4、防排烟系统工程验收常见质量通病
5、自动喷水灭火系统工程验收质量通病
6、消火栓系统工程验收常见质量通病
7、火灾自动报警系统工程验收常见质量通病

有一种安全,叫关注消防安全驿站。

查看全文
作者最近更新
-
【问答】流量开关和低压压力开关是否需要设输入模块监视消防安全驿站
2025-05-26 -
【解读】消防流量开关的安装位置消防安全驿站
2025-05-19 -
【解读】流量开关与低压压力开关的取值消防安全驿站
2021-06-15
传感器专家网
四方光电 


评论0条评论